Skip links

CODE

ALN
02

Maisons Collectifs

Ce projet résidentiel situé à Aulnay-sous-Bois s’intègre dans le tissu urbain environnant. Il propose des logements avec des jardins partagés favorisant les interactions sociales et des espaces privatifs pour un confort optimal.

ANNEE

2019

VILLE

AULNAY-SOUS-BOIS

PAYS

FRANCE

TYPOLOGIE

HABITAT

MISSION

FAISA

CLIENT

PRIVE

SURFACE

2 200 m²

EQUIPE

Julien THIRION
Yoon Joo CHOI
Claudio Antonini

Maison Collectifs

Ce projet de logements collectifs est situé au sud-ouest de la ville d'Aulnay-sous-Bois, dans une zone de transition entre le quartier résidentiel de Livry-Gargan et la rivière Ourcq. Ce projet propose des typologies de logements qui s'intègrent harmonieusement dans ce quartier résidentiel, tout en visant à optimiser le ratio entre les espaces de vie et la superficie du terrain.

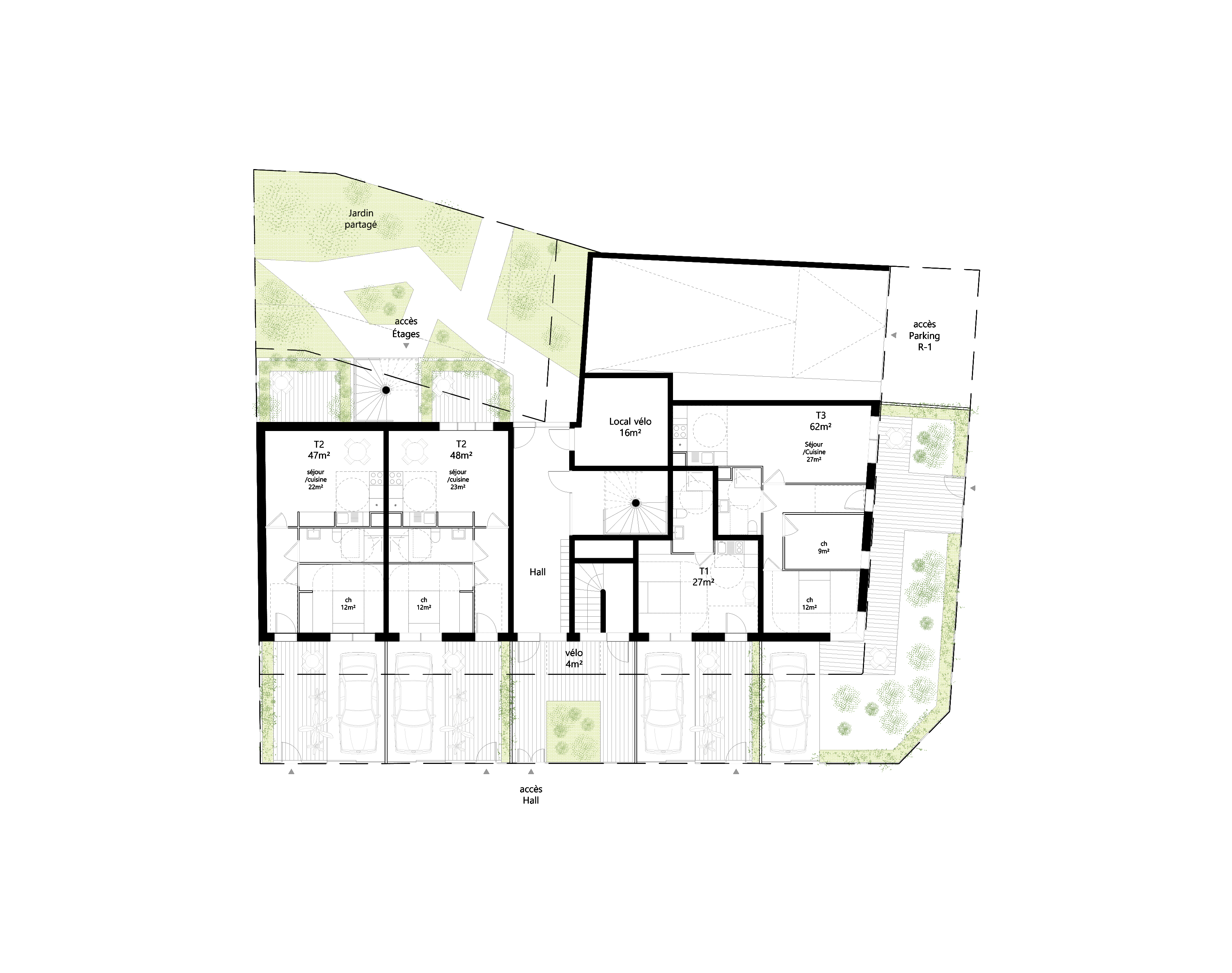
Logements et jardin partagé

Les logements sont conçus de T1 à T4, offrant des espaces de vie agréables et lumineux. Chaque appartement dispose d'un vaste salon, orienté vers le jardin communautaire, créant ainsi un lien visuel entre l'intérieur et l'extérieur. Le jardin communautaire sert de lieu de rencontre qui favorise les échanges intergénérationnels et interculturels.

Jardin privatif au logement de RDC

Tous les logements au rez-de-chaussée disposent d'un jardin privatif avec une place de parking, semblable à une maison de ville. Ce jardin est situé à proximité des rues passantes, tout en permettant de conserver un espace privé.

Optimisation des espaces extérieurs et accès privé

Chaque logement possède un espace extérieur privé. Les niveaux supérieurs comprennent des terrasses et des balcons, permettant aux résidents de maintenir un espace privé tout en profitant d'espaces ouverts. Les appartements situés au sud-est offrent un accès direct au jardin, avec des escaliers extérieurs et des couloirs menant à une entrée privée. L'espace intérieur est conçu de manière efficace, permettant un accès facile aux autres unités par un hall central.