Skip links

CODE

DSM

Plan aménagement urbain

À Dives-sur-Mer, le projet du quartier SARLABOT propose 14 parcelles pour maisons individuelles, intégrées dans une trame urbaine mixte. Espaces verts et continuité urbaine renforcent connectivité, durabilité et cohérence architecturale.

ANNEE

2015

VILLE

DIVE-SUR-MER

PAYS

FRANCE

TYPOLOGIE

URBAIN

MISSION

URBAIN

CLIENT

PUBLIC
Ville de Dives-sur-Mer

SURFACE

18 000 m²

EQUIPE

Julien THIRION
Natasha MUSZKAT

Plan urbain du Quartier Sarlabot

Reset-Studio a analysé l’environnement urbain et élaboré un plan de développement pour le nouveau quartier résidentiel de SARLABOT, situé à Dives-sur-Mer en Normandie. Ce quartier, situé à l’entrée de la ville dans une zone bien desservie en infrastructures, est prévu pour s’intégrer dans l’extension de l’ancien centre-ville. Conçu pour accueillir une urbanisation mixte combinant résidences, équipements et services, le quartier sera intégré dans une zone urbaine (UA) caractérisée par une urbanisation dense favorisant la diversité d’activités, conformément aux réglementations en vigueur.

« Quartier Sarlabot en 2015 »
« Quartier Sarlabot Projet »
« Quartier Sarlabot en 2020 »

Bâtis :
Connectivité
inter-quartiers

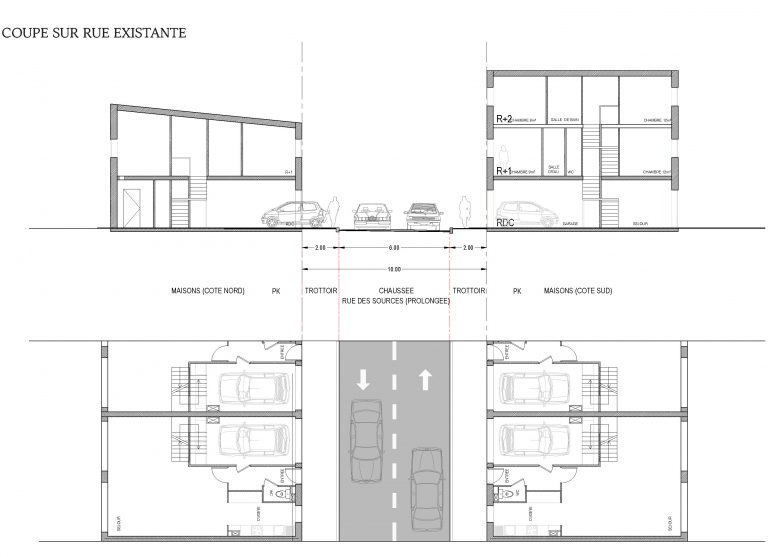
Ce projet crée une liaison harmonieuse entre les maisons individuelles de la rue du Verger et les maisons mitoyennes de la rue des Senteurs. Cette connexion assure une transition en douceur entre les bâtiments continus de la zone UA et les nouveaux quartiers résidentiels individuels existants. Le site sera divisé en parcelles pour la création de nouveaux lots, chaque parcelle accueillant une maison individuelle. Le projet prévoit ainsi l’aménagement de 14 parcelles de 7800 m² destinées à des maisons individuelles, avec des dimensions de 20 m x 22 m chacune.

Espaces Verts : Intégration paysagère

Les extrémités des parcelles soulignent l’entrée du parc et créent un passage reliant le centre Les Tilleuls avec la rue et le parc, facilitant ainsi une transition douce vers l’espace urbain. Les zones de collecte des déchets sont intégrées dans le plan paysager global. L’implantation des bâtiments est ajustée en fonction des spécificités de chaque parcelle, permettant de préserver de vastes espaces verts et de créer des vues attractives. Ce projet privilégie un accès facile au parc depuis le centre, rendant le parc plus actif. Les bâtiments font office de filtre entre la route et le parc, facilitant l’accès visuel et physique au parc tout en préservant son ouverture et sa protection grâce à des retraits en bordure. Les espaces verts extérieurs ainsi aménagés seront gérés directement par la ville.