CODE
Collège
Le projet dans le quartier des Fiches-Nord, à Lausanne en Suisse, vise à créer un campus harmonieux en intégrant quatre équipements : un Centre de Vie Enfantine, l'APEMS, un collège et une salle de gymnastique.
ANNEE
2014
VILLE
LAUSANNE
PAYS
SUISSE
TYPOLOGIE
CULTURE
MISSION
AMO
CLIENT
PUBLIC
Ville de Lausanne
SURFACE
4 960 m²
EQUIPE
Julien THIRION,
Marcello FERRARA
Enjeu Urbain
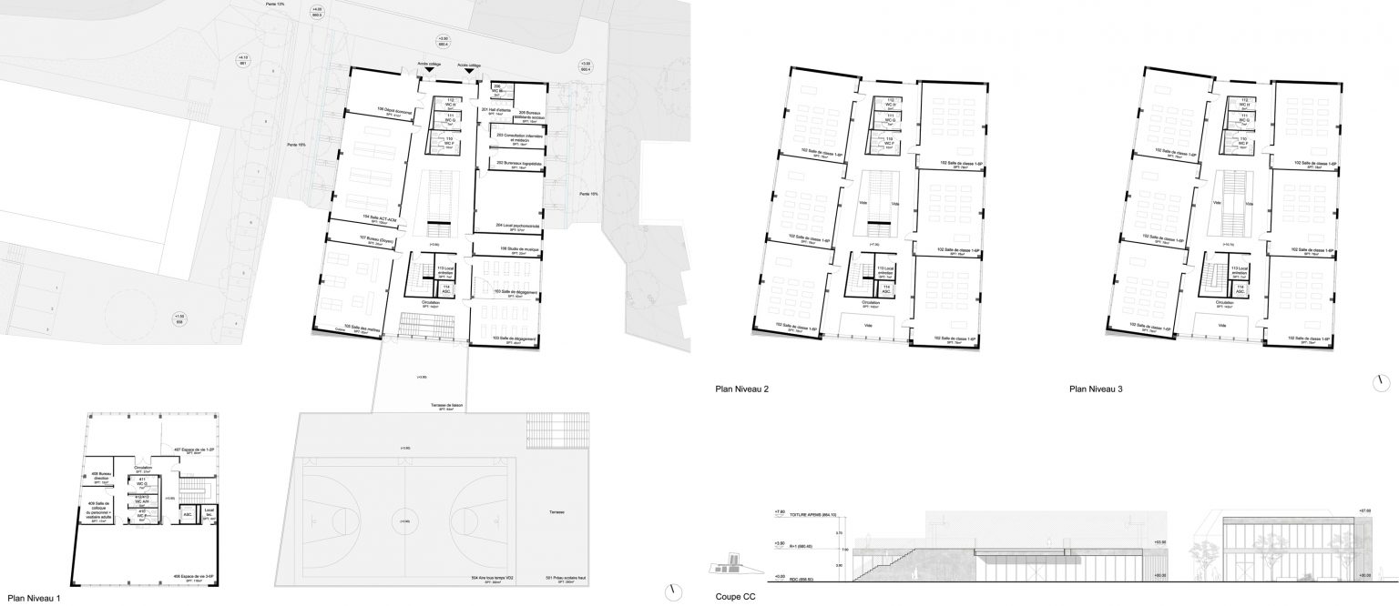
Le projet dans le quartier des Fiches-Nord, à Lausanne en Suisse, vise à créer un campus harmonieux en intégrant quatre équipements : un Centre de Vie Enfantine, l'APEMS, un collège et une salle de gymnastique. L'objectif est de préserver au maximum le paysage verdoyant existant et de minimiser l'impact des constructions sur le site. Les bâtiments sont conçus pour s'harmoniser avec le terrain légèrement incliné et les hauteurs des constructions environnantes, existantes et futures, s’intégrant ainsi naturellement dans le cadre. Comme des blocs géants émergeant de la montagne, ces volumes créent des espaces extérieurs connectant les différents bâtiments.
Deux Esplanades Est-Ouest
L'accès au site est organisé autour de deux grands axes. Les esplanades piétonnes et les pistes cyclables entourent le campus, permettant de gérer les différences de niveaux et de relier les entrées des différents bâtiments. Deux esplanades, l’une haute et l’autre basse, relient la rue principale au nouveau quartier dans un axe Est-Ouest. En outre, des connexions Nord-Sud traversent le site en reliant ces esplanades et descendent à travers des interstices entre les bâtiments. Les escaliers intégrés dans les talus végétalisés permettent de franchir les dénivelés, formant ainsi une séquence spatiale harmonieuse qui va des jardins extérieurs à l'APEMS, au Centre de Vie Enfantine, à la salle de gymnastique, aux classes et à la cour centrale.
Terrasses - Belvédères
L'architecture est structurée autour de deux terrasses-belvédères : la terrasse intérieure au nord du collège et la terrasse en toiture au sud de la salle de gymnastique. Au nord, le bâtiment du collège et le parking semi-enterré sont connectés à une rampe de parking prévue au nord du site. Au sud, la salle de gymnastique semi-enterrée forme un belvédère ouvert vers le sud, relié au premier étage du collège par une large passerelle.
Passerelle entre le Collège et la Cour Supérieure
Cette passerelle couvre l'entrée principale de la cour du collège, et sert également de couverture pour le préau de la salle de gymnastique. Elle renforce la relation entre les bâtiments et le quartier résidentiel, tout en valorisant les volumes architecturaux par un alignement cohérent et un usage de pierres locales pour une esthétique continue et harmonieuse.
Collège Ouvert
Le collège se présente comme le résultat d'une division d'un volume unique en deux blocs robustes en pierre, créant ainsi un espace central de circulation, de rencontre et de lumière, tourné vers le sud pour un intérieur lumineux et agréable.
Salle de Gym Traversante
La salle de gym semi-enterrée propose une transparence qui offre une vue directe depuis l'entrée vers l'espace de jeux et le paysage extérieur. Sur le toit de la salle de gym, un terrain de sport accessible par les élèves et les résidents du quartier forme une terrasse offrant une vue panoramique sur le lac et les montagnes, créant un cadre naturel idéal pour les activités sportives.






